Brown

2761

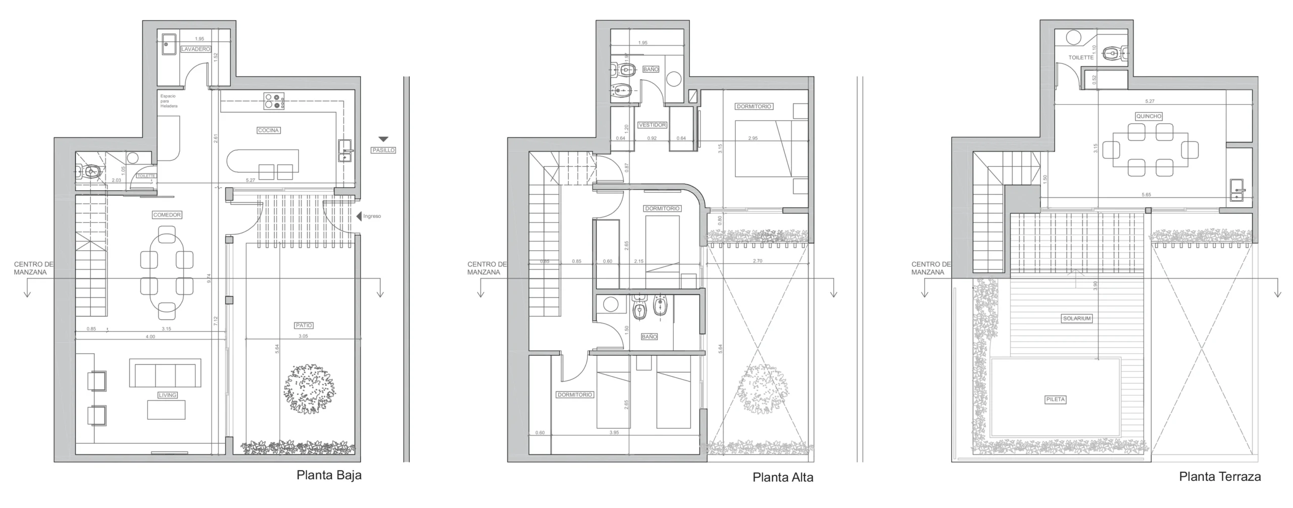
Brown 2761 es una vivienda nueva de pasillo, desarrollada desde sus cimientos con una propuesta de arquitectura contemporánea y una distribución funcional de los ambientes.

La propiedad se desarrolla en dos plantas más terraza, con espacios amplios y equilibrados que priorizan la relación entre interior y exterior.

El proyecto incorpora patios, áreas sociales generosas y una terraza equipada, ofreciendo una vivienda pensada para el confort cotidiano y el disfrute de los espacios al aire libre.

El proyecto

Ubicada en Brown 2761, en el sector norte de Rosario, esta vivienda se encuentra en una zona que combina movimiento urbano con cercanía a espacios culturales y áreas verdes.

A pocas cuadras se encuentran referentes de la ciudad como el Museo de Arte Contemporáneo de Rosario (MACRO) ubicado en los antiguos silos Davis, y la Estación Rosario Norte, uno de los nodos de conectividad más importantes de la ciudad.

La zona ofrece un a amplia propuesta gastronómica, comercial y cultural, además de buena conectividad y cercanía a múltiples servicios, lo que la convierte en un entorno dinámico y atractivo para vivir.

2 Dormitorios

210,7m2

Lote 7